91看片免费,成人看片APP,91免费看片下载,黄色网站免费看片

    您现在的位置: 首页 > 项目展示 > 小区景观设计

    栏目导航

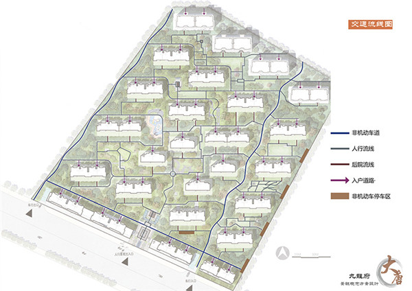
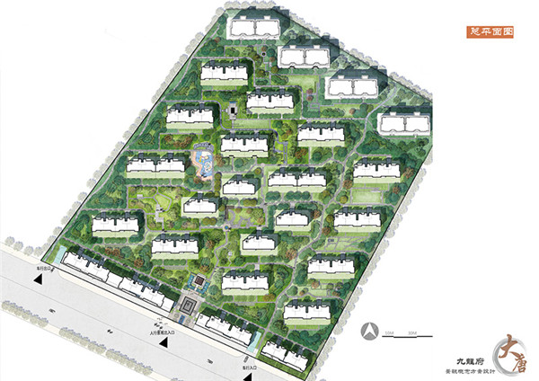
    九龙府二期园林景观设计

    九龙府二期园林景观设计

    • 九龙府二期园林景观设计

    热线电话

    13673978510

    大唐.九龙府  景观方案设计

    设计愿景

    山水、轴线、气韵、淡泊、宁静

    文化

    传承传统文化的同时,更寓意可持续的设计理念,物尽其用,饮水思源。

    一府十九境

    用中式的的灵魂。现代的手法来演绎阐释新中式的中国表情,而非现代的想法强加堆彻古典的元素。

    境一:竹林境

    赏析:静心

         翠壁多年霜藓合,石床春尽雨花深。

    胜游过眼俱陈迹,珍重新题满竹林。

    境二:山泽游

    赏析:见悟

         金城绛阙应无处,翠壁丹青尚有踪。

    天下名区皆一到,此山殊不厌来重。

    境三:松间照

    赏析:赏景

         洞门春霭蔽深松,飞磴缠空转石峰。

    猛虎踞崖如出柙,断螭盘顶讶悬钟。

    境四:鸿鹄逸

    赏析:聆听

         萦纡鸟道入云松,下数湖南百二峰。

    岩犬吠人时出树,山僧迎客自鸣钟。

    境五:墟里烟

    赏析:淡泊

    一卧禅房隔岁心,五峰烟月听猿吟。

    飞湍映树悬苍玉,松粉吹香落细金。

    境六:卧龙居

    赏析:自得

    偶寻春寺入层峰,曾到浑疑是梦中。

    飞鸟去边悬栈道,冯夷宿处于幽宫。


    more+在线咨询
    • 姓名
    • 性别 男      
    • QQ
    • 邮箱
    • 手机
    • 地址
    • 内容
    •   
    地区产品
    网站地图