91看片免费,成人看片APP,91免费看片下载,黄色网站免费看片

    您现在的位置: 首页 > 项目展示 > 小区景观设计

    栏目导航

    佰新服装创意产业基地园林景观

    佰新服装创意产业基地园林景观

    热线电话

    13673978510

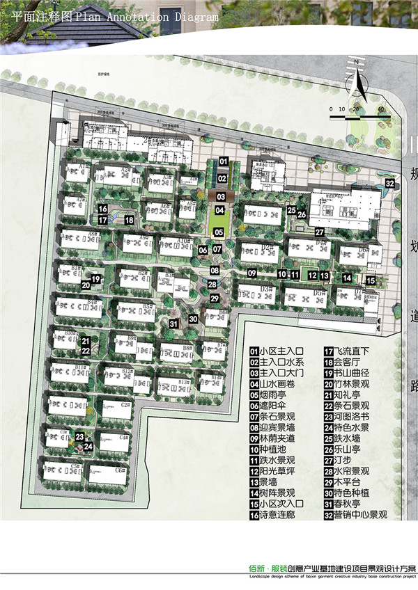
    佰新·服装创意产业基地建设项目景观设计方案

    Landscape expansion design scheme for construction project of creative industry base of new garment

    汉风

    汉:设计以地形高低落差体现崇山,山体面积较大,高度较高,景观的崇山性表现在园林的堆山上,园山雄伟,以高、壮为美。

    楚韵

    楚:以山水园林为基本形式,力求自然与人工巧妙、 完美地结合。以小巧、自由、精致、淡雅和写意见长,它不仅是历史文化的产物,同时也是中国传统思想文化的载体。


    关键字:
    more+在线咨询
    • 姓名
    • 性别 男      
    • QQ
    • 邮箱
    • 手机
    • 地址
    • 内容
    •   
    地区产品
    网站地图